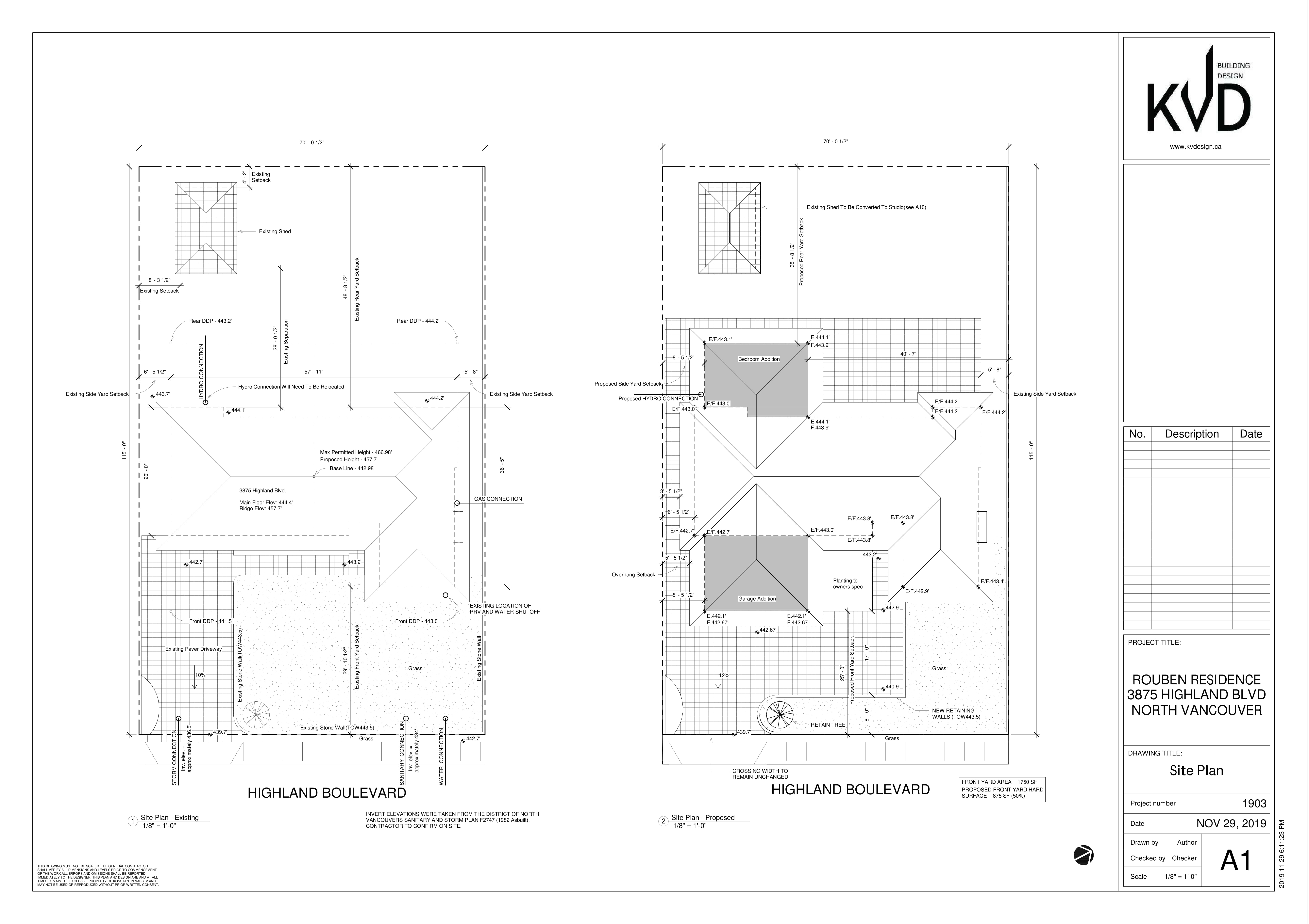
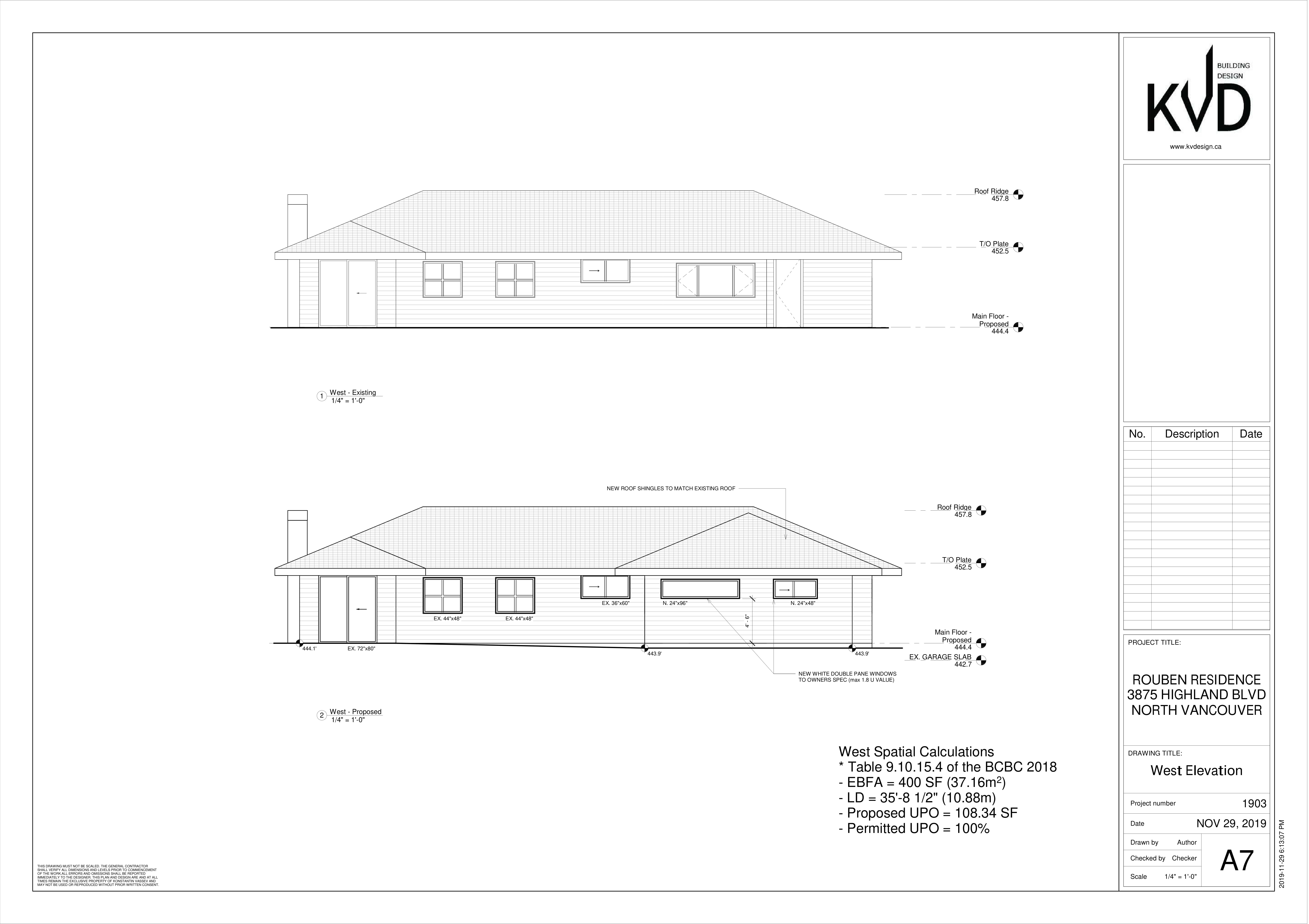
North Vancouver Home Addition: Practical and Stylish
Imagine a one-story home in North Vancouver. The challenge? Add a two-car garage, laundry room and full master bedroom while preserving the home’s style. Our solution? A harmonious addition that seamlessly blends function and aesthetics.
Step inside our architectural journey, where practicality meets precision. Explore our renderings and envision life in this North Vancouver gem!











